
GLP Łódź III Logistic Centre

Dostępna pow.
31 337 m²
Lokalizacja
Łódź, Łódzkie
Łódź, Łódzkie
Pokaż na mapie
Patryk Romanowski
Zadzwoń
Pokaż numer telefonu4 727 m²
36 598 m²
Powyżej 6 miesięcy
BREEAM
Prologis Park Łódź III składa się z jednego budynku, oferującego około 35 000 metrów kwadratowych powierzchni magazynowo-biurowych klasy A.
Nowoczesny projekt budynku i doskonałe połączenia komunikacyjne sprawiają, że park ten, wraz z pobliskim Prologis Park Łódź i Prologis Park Łódź II, stanowi najnowocześniejsze centrum logistyczne. Klienci mogą korzystać z zaawansowanych udogodnień, takich jak:
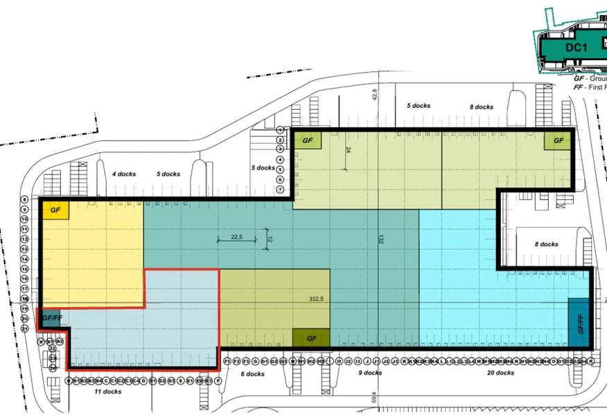
Dostępny moduł na wynajem o wielkości 4727 mkw składa się z:
Wyjątkowa oferta: możliwość przekształcenia powierzchni pod obiekt rekreacyjny: możliwy padel lub inny obiekt sportowy
**** Prologis Park Łódź III to jedna z najlepszych lokalizacji logistycznych w Polsce. Położony zaledwie 4 kilometry od centrum Łodzi i 9 kilometrów od lotniska z łatwym dostępem do lokalnych połączeń transportu publicznego zapewnia dostęp do jednego z największych rynków pracy w Polsce a także szerokie możliwości w zakresie dostaw ostatniej mili. Park jest również jednym z najlepiej skomunikowanych w skali krajowej i międzynarodowej centrów logistycznych, z łatwym dostępem do autostrad A1 i A2 które zapewniają szybkie połączenia drogowe z Warszawą, Gdańskiem i Katowicami, a także międzynarodowymi destynacjami.
Tabela przedstawiająca szczegóły budynków magazynowych w lokalizacji Prologis Park Łódź III
19 km
4 km
1 km
< 1 km
Niniejsze ogłoszenie ma charakter wyłącznie informacyjny i nie stanowi oferty w myśl art. 66 § 1. Kodeksu Cywilnego. CBRE sp. z o.o. nie odpowiada za ewentualne błędy lub nieaktualność ogłoszenia. Ogłoszenia, cenniki i inne informacje zawarte na stronie internetowej mogą się różnić od danych rzeczywistych. Publikacja ogłoszenia nie gwarantuje dostępności prezentowanych nieruchomości. Weryfikacja dostępności odbywa się po wysłaniu formularza kontaktowego.
Opowiedz nam o swoich potrzebach, a my pomożemy Ci wybrać magazyn dopasowany do Twojej firmy.
Napisz do nas!
Dlaczego warto skorzystać z pomocy doradców?
Płynny proces i oszczędność czasu – dedykowany opiekun skoordynuje cały proces od analizy potrzeb po przeprowadzkę.
Negocjacje z zyskiem – dzięki znajomości rynku i analizie ryzyka uzyskujemy dla Ciebie najkorzystniejsze warunki i bezpieczną umowę.
Wsparcie techniczne i aranżacyjne – precyzyjnie definiujemy standard magazynu i pomagamy w jego bezproblemowym przejęciu.
Transparentność bez ryzyka – otrzymujesz jasne raporty rynkowe i pełną informację o potencjalnych zagrożeniach.
Opieka poprocesowa – nasze wsparcie nie kończy się na umowie; jesteśmy do Twojej dyspozycji przez cały okres najmu.